Huis
€ 495.000

9850 Nevele
    • delen

Omschrijving Ref.: 6802672

Woning met potentieel en open zicht


In Peperhol 4 te Nevele vindt u een eigendom op een perceel van ca. 3.000 m², rustig gelegen en met een open zicht over de velden. Dankzij de vlotte verbinding naar de E40 en het station combineert deze ligging rust en bereikbaarheid.

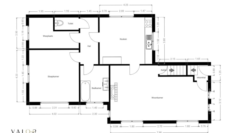
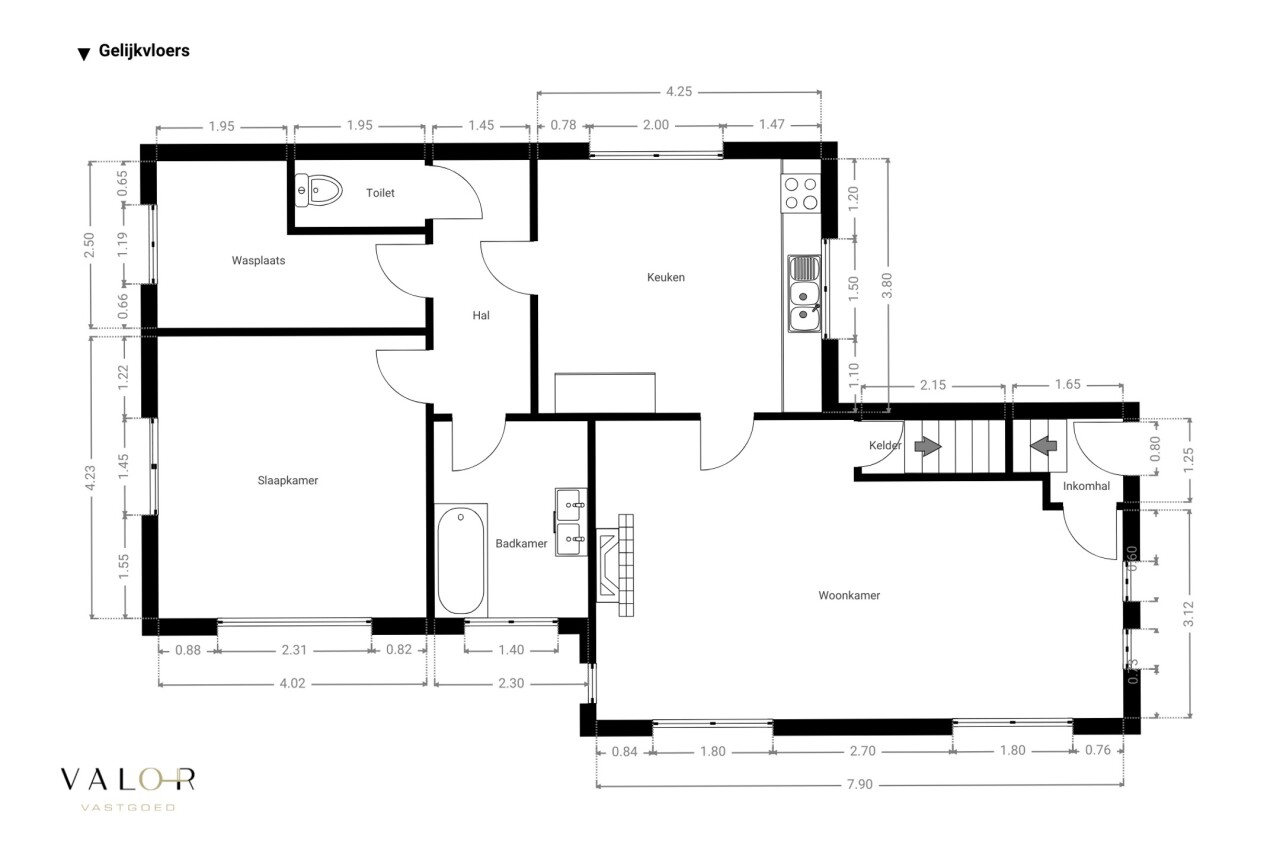
De woning is praktisch ingedeeld met 3 slaapkamers, keuken, living, berging, zolder en dubbele garage. Dit maakt ze geschikt voor wie wil renoveren of heropbouwen en zo een eigendom naar eigen wensen vormgeven.

Een uitstekende kans voor wie ruimte, potentieel en een gunstige ligging belangrijk vindt.
*sommige foto's werden digitaal bewerkt ter inspiratie

Interesse?
Contacteer Stefanie D'hondt via 0474 09 01 10 of stefanie@valorvastgoed voor meer info of een vrijblijvende bezichtiging.



Uw contact

Stefanie D'hondt 0474 09 01 10
contact

Details van het pand

Financieel

Prijs
€ 495.000,00
Onder BTW stelsel
Nee
Beschikbaarheid
Vanaf akte

Ligging

Buurt
Open ligging
Autosnelweg nabij
Ja

Gebouw

Aantal gevels
4
Bouwjaar
1956
Staat
Te renoveren
Aantal verdiepingen
2
Type dak
Zadeldak

Terrein

Grondoppervlakte
3.000,00 m²
Tuin
Ja

Parkeermogelijkheden

Garage
2
Parkings buiten
4
Parkings binnen
2

Indeling

Keuken
Ja
Douchekamers
1
Toiletten
1
Wasplaats
Ja
Kelder
Ja

Comfort

Gemeubeld
Nee
Handicapvriendelijk
Nee
Lift
Nee

Energie

EPC
1.251 kWh/m²/jaar
EPC unieke code
0003570658
Dubbele beglazing
Ja
Ramen
Hout
Elektriciteitskeuring
Nee
Verwarming
Individueel

Technieken

Elektriciteit
Ja
Water
Ja

Stedenbouw

Bestemming
Agrarisch gebied
Bouwvergunning
Ja
Verkavelingsvergunning
Niet meegedeeld
Voorkooprecht
Nee
Renovatieverplichting
Ja
Asbestinventarisattest
Ja
Dagvaarding
Nee - geen rechterlijke herstelmaatregel of bestuurlijke maatregel opgelegd
O-peil
Niet gelegen in een overstromingsgevoelig gebied
G-score
A
P-score
A
Watergevoelig openruimtegebied
Nee
Vonnissen
Nee
Servitude
Nee

Meer info over deze eigendom

Bedankt voor je bericht, we contacteren je zo spoedig mogelijk.
Er was een probleem bij het versturen van het formulier, gelieve opnieuw te proberen.
U moet de algemene voorwaarden aanvaarden om dit bericht te kunnen verzenden
(*) Gelieve de verplichte velden in te vullen.